Použití:
Stožáry jsou určeny pro uchycení železniční trakce.
Popis:
Příhradová konstrukce z L profilů v rozsahu výšek 9 až 16m s rozměrem vrcholu 400x400 a rozměrem paty 600x800, 500x1000 nebo, 800x1000 nebo, 1000x1250 dle typu stožáru.
Na stožár mohou být použity všechny vhodné druhy povrchových úprav.
Stožár o délce 9m
| Typ | Výška (m) | Profil stojny | Profil příčky | Rozměr paty (mm) | Rozměr vrcholu (mm) | Hmotnost (kg) | Nátěrová plocha (m2) | Zatížení větrem (kNm) | |||
| b | a | b | a | b | a | ||||||
| BP1 | 9 | L70x8 | L40x5 | 600 | 800 | 400 | 400 | 549 | 17,82 | 11,8 | 12,14 |
| BP2 | 9 | 500 | 1000 | 554 | 18,23 | 11,69 | 12,39 | ||||
| BP3 | 9 | 800 | 1000 | 568 | 18,89 | 11,69 | 11,8 | ||||
| BP4 | 9 | L90x10 | 600 | 800 | 728 | 20,34 | 14,08 | 14,53 | |||
| BP5 | 9 | 500 | 1000 | 735 | 20,78 | 14 | 14,86 | ||||
| BP6 | 9 | 800 | 1000 | 749 | 21,45 | 14 | 14,07 | ||||
| BP7 | 9 | L100x12 | 600 | 800 | 887 | 21,57 | 15,44 | 15,63 | |||
| BP8 | 9 | 500 | 1000 | 893 | 21,86 | 15,58 | 16,25 | ||||
| BP9 | 9 | 800 | 1000 | 908 | 22,55 | 15,58 | 15,8 | ||||
Stožár o délce 10m
| Typ | Výška (m) | Profil stojny | Profil příčky | Rozměr paty (mm) | Rozměr vrcholu (mm) | Hmotnost (kg) | Nátěrová plocha (m2) | Zatížení větrem (kNm) | |||
| b | a | b | a | b | a | ||||||
| BP11 | 10 | L70x8 | L40x5 | 600 | 800 | 400 | 400 | 584 | 19,57 | 15,03 | 14,56 |
| BP12 | 10 | 500 | 1000 | 589 | 19,91 | 15,38 | 14,37 | ||||
| BP13 | 10 | 800 | 1000 | 603 | 20,62 | 14,56 | 17,37 | ||||
| BP14 | 10 | L90x10 | 600 | 800 | 783 | 22,29 | 17,96 | 17,34 | |||
| BP15 | 10 | 500 | 1000 | 788 | 22,64 | 18,44 | 17,05 | ||||
| BP16 | 10 | 800 | 1000 | 803 | 23,33 | 17,34 | 17,05 | ||||
| BP17 | 10 | L100x12 | 600 | 800 | 958 | 23,64 | 19,45 | 18,75 | |||
| BP18 | 10 | 500 | 1000 | 964 | 23,98 | 19,98 | 18,40 | ||||
| BP19 | 10 | 800 | 1000 | 977 | 24,69 | 18,75 | 18,40 | ||||
Stožár o délce 11m
| Typ | Výška (m) | Profil stojny | Profil příčky | Rozměr paty (mm) | Rozměr vrcholu (mm) | Hmotnost (kg) | Nátěrová plocha (m2) | Zatížení větrem (kNm) | |||
| b | a | b | a | b | a | ||||||
| BP21 | 11 | L70x8 | L40x5 | 600 | 800 | 400 | 400 | 652 | 21,52 | 17,94 | 18,43 |
| BP22 | 11 | 500 | 1000 | 659 | 21,90 | 17,72 | 18,80 | ||||
| BP23 | 11 | 800 | 1000 | 674 | 22,71 | 17,72 | 17,94 | ||||
| BP24 | 11 | L90x10 | 600 | 800 | 872 | 24,53 | 21,41 | 22,07 | |||
| BP25 | 11 | 500 | 1000 | 879 | 24,93 | 21,17 | 22,56 | ||||
| BP26 | 11 | 800 | 1000 | 894 | 25,76 | 21,17 | 21,41 | ||||
| BP27 | 11 | L100x12 | 600 | 800 | 1087 | 27,24 | 22,77 | 23,17 | |||
Stožáry o délce 12,5m
| Typ | Výška (m) | Profil stojny | Profil příčky | Rozměr paty (mm) | Rozměr vrcholu (mm) | Hmotnost (kg) | Nátěrová plocha (m2) | ||
| b | a | b | a | ||||||
| BP31 | 12,5 | 70x8 | 40x5 | 600 | 800 | 400 | 400 | 731 | 24,28 |
| BP32 | 12,5 | 90x10 | 980 | 27,71 | |||||
| BP33 | 12,5 | 800 | 1000 | 1005 | 29,04 | ||||
| BP34 | 12,5 | 100x12 | 1223 | 30,73 | |||||
| BP35 | 12,5 | 120x12 | 45x5 | 1492 | 35,27 | ||||
| BP36 | 12,5 | 1000 | 1250 | 1522 | 36,96 | ||||
Stožáry o délce 14m
| Typ | Výška (m) | Profil stojny | Profil příčky | Rozměr paty (mm) | Rozměr vrcholu (mm) | Hmotnost (kg) | Nátěrová plocha (m2) | ||
| b | a | b | a | ||||||
| BP41 | 14 | 90x10 | 40x5 | 800 | 1000 | 400 | 400 | 1118 | 32,39 |
| BP42 | 14 | 100x12 | 1363 | 34,5 | |||||
| BP43 | 14 | 120x12 | 1574 | 38,38 | |||||
| BP44 | 14 | 45x5 | 1250 | 1000 | 1645 | 41,53 | |||
Stožáry o délce 16m
| Typ | Výška (m) | Profil stojny | Profil příčky | Rozměr paty (mm) | Rozměr vrcholu (mm) | Hmotnost (kg) | Nátěrová plocha (m2) | ||
| b | a | b | a | ||||||
| BP51 | 16 | 100x12 | 40x5 | 800 | 1000 | 400 | 400 | 1546 | 39,2 |
| BP52 | 16 | 120x12 | 1787 | 43,69 | |||||
| BP53 | 16 | 45x5 | 1000 | 1250 | 1868 | 47,28 | |||


Stožáry DS
| Typ stožáru | DS/12 | Typ stožáru | DS/14 | Typ stožáru | DS/16 | ||||||
| Rozkrok stojin | 350 | Hmotnost (kg) | Plocha (m2) | Rozkrok stojin | 400 | Hmotnost (kg) | Plocha(m2) | Rozkrok stojin | 450 | Hmotnost (kg) | Plocha (m2) |
| Délka | 6000 | 258,60 | 7,80 | Délka | 6000 | 306,7 | 8,95 | Délka | 6000 | 343,1 | 10 |
| 6500 | 274,60 | 8,35 | 6500 | 325,70 | 9,6 | 6500 | 365,40 | 10,7 | |||
| 7000 | 290,60 | 8,90 | 7000 | 344,80 | 10,2 | 7000 | 387,70 | 11,4 | |||
| 7500 | 306,60 | 9,45 | 7500 | 363,80 | 10,9 | 7500 | 410,00 | 12,1 | |||
| 8000 | 322,60 | 10,00 | 8000 | 382,90 | 11,5 | 8000 | 432,20 | 12,9 | |||
| 8500 | 338,60 | 10,55 | 8500 | 401,90 | 12,2 | 8500 | 454,50 | 13,6 | |||
| 9000 | 354,60 | 11,10 | 9000 | 420,90 | 12,8 | 9000 | 476,80 | 14,3 | |||
| 9500 | 370,60 | 11,65 | 9500 | 440,00 | 13,4 | 9500 | 499,10 | 15 | |||
| 10000 | 386,60 | 12,20 | 10000 | 459,00 | 14,1 | 10000 | 521,40 | 15,8 | |||
| 10500 | 402,60 | 12,75 | 10500 | 478,10 | 14,7 | 10500 | 534,60 | 16,5 | |||
| 11000 | 418,60 | 13,30 | 11000 | 497,10 | 15,4 | 11000 | 565,90 | 17,2 | |||
| 11500 | 434,60 | 13,85 | 11500 | 516,10 | 16 | 11500 | 588,20 | 18 | |||
| 12000 | 450,60 | 14,40 | 12000 | 535,20 | 16,6 | 12000 | 610,50 | 18,7 | |||

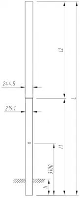
Použití:
Stožáry jsou určeny pro uchycení železniční trakce.
Popis:
Jednodílný nosný trubkový stožár o průměru 168,3 mm s tloušťkou stěny 8 mm v rozsahu výšek 6 až 14 metrů s odstupňováním po 0,5m.
Na stožár mohou být použity všechny vhodné druhy povrchových úprav.
| Výška (m) L |
Hmotnost (kg) | Nátěrová plocha (m2) | Zatížení větrem (kNm) | Únosnost (kNm) | ||
| h = 1 000 mm | h = 650 mm | h = 1 000 mm | h = 650 mm | |||
| 6000 | 235,3 | 3,17 | 1,00 | 1,14 | 37,20 | 37,20 |
| 6500 | 254,8 | 3,44 | 1,21 | 1,37 | 37,10 | 36,30 |
| 7000 | 274,2 | 3,70 | 1,44 | 1,61 | 35,90 | 33,90 |
| 7500 | 293,7 | 3,96 | 1,69 | 1,87 | 33,20 | 31,50 |
| 8000 | 313,6 | 4,23 | 1,95 | 2,15 | 30,80 | 29,30 |
| 8500 | 333,1 | 4,49 | 2,24 | 2,46 | 28,70 | 27,50 |
| 9000 | 352,6 | 4,76 | 2,55 | 2,78 | 26,90 | 25,80 |
| 9500 | 372,7 | 5,02 | 2,88 | 3,12 | 25,40 | 24,40 |
| 10000 | 391,6 | 5,28 | 3,23 | 3,48 | 23,90 | 23,10 |
| 10500 | 411,0 | 5,55 | 3,60 | 3,87 | 22,70 | 21,90 |
| 11000 | 430,5 | 5,81 | 3,99 | 4,27 | 21,60 | 20,80 |
| 11500 | 450,0 | 6,08 | 4,39 | 4,69 | 20,50 | 19,90 |
| 12000 | 469,5 | 6,34 | 4,82 | 5,13 | 19,60 | 19,00 |
| 12500 | 489,0 | 6,61 | 5,27 | 5,60 | 18,70 | 18,20 |
| 13000 | 508,5 | 6,87 | 5,74 | 6,08 | 18,00 | 17,50 |
| 13500 | 528,0 | 7,13 | 6,23 | 6,58 | 17,20 | 16,80 |
| 14000 | 547,4 | 7,40 | 6,74 | 7,10 | 16,60 | 16,10 |

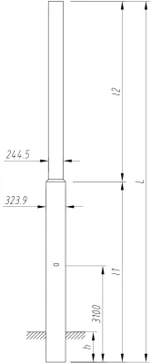
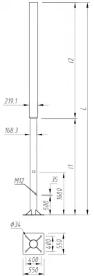
Použití:
Stožáry jsou určeny pro uchycení železniční trakce.
Popis:
Jednodílný nosný trubkový stožár o průměru 168,3 mm s tloušťkou stěny 8 mm v rozsahu výšek 6 až 14 metrů s odstupňováním po 0,5m s patkou. Tento typ stožáru je kompatibilní se svorníkovým košem typu KS30.
Na stožár mohou být použity všechny vhodné druhy povrchových úprav.
| Výška (m) | Hmotnost (kg) | Nátěrová plocha (m2) | Zatížení větrem (kNm) | Únosnost (kNm) |
| 6000 | 288,6 | 3,93 | 1,44 | 35,90 |
| 6500 | 308,1 | 4,19 | 1,69 | 33,20 |
| 7000 | 327,5 | 4,46 | 1,96 | 30,80 |
| 7500 | 347,0 | 4,72 | 2,25 | 28,70 |
| 8000 | 366,9 | 4,99 | 2,55 | 26,90 |
| 8500 | 386,4 | 5,25 | 2,88 | 25,40 |
| 9000 | 405,9 | 5,51 | 3,23 | 23,90 |
| 9500 | 425,4 | 5,78 | 3,60 | 22,70 |
| 10000 | 444,9 | 6,04 | 3,99 | 21,60 |
| 10500 | 464,3 | 6,31 | 4,39 | 20,50 |
| 11000 | 483,8 | 6,57 | 4,82 | 19,60 |
| 11500 | 503,3 | 6,83 | 5,27 | 18,70 |
| 12000 | 522,8 | 7,10 | 5,74 | 18,00 |
| 12500 | 542,3 | 7,36 | 6,23 | 17,20 |
| 13000 | 561,8 | 7,63 | 6,74 | 16,60 |
| 13500 | 581,2 | 7,89 | 7,26 | 16,00 |
| 14000 | 600,7 | 8,16 | 7,81 | 15,40 |

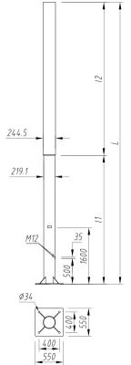
Použití:
Stožáry jsou určeny pro uchycení železniční trakce.
Popis:
Jednodílný nosný trubkový stožár o průměru 168,3 mm s tloušťkou stěny 8 mm v rozsahu výšek 6 až 14 metrů s odstupňováním po 0,5m s patkou a úchytem pro podpěrný izolátor. Tento typ stožáru je kompatibilní se svorníkovým košem typu KS30.
Na stožár mohou být použity všechny vhodné druhy povrchových úprav.
| Výška (m) | Hmotnost (kg) | Nátěrová plocha (m2) | Zatížení větrem (kNm) | Únosnost (kNm) |
| 6000 | 290,3 | 3,93 | 1,44 | 35,90 |
| 6500 | 309,7 | 4,19 | 1,69 | 33,20 |
| 7000 | 329,2 | 4,46 | 1,96 | 30,80 |
| 7500 | 348,6 | 4,72 | 2,25 | 28,70 |
| 8000 | 368,6 | 4,99 | 2,55 | 26,90 |
| 8500 | 388,1 | 5,25 | 2,88 | 25,40 |
| 9000 | 407,5 | 5,51 | 3,23 | 23,90 |
| 9500 | 427,0 | 5,78 | 3,60 | 22,70 |
| 10000 | 446,5 | 6,04 | 3,99 | 21,60 |
| 10500 | 466,0 | 6,31 | 4,39 | 20,50 |
| 11000 | 485,5 | 6,57 | 4,82 | 19,60 |
| 11500 | 504,9 | 6,83 | 5,27 | 18,70 |
| 12000 | 524,4 | 7,10 | 5,74 | 18,00 |
| 12500 | 543,9 | 7,36 | 6,23 | 17,20 |
| 13000 | 563,4 | 7,63 | 6,74 | 16,60 |
| 13500 | 582,9 | 7,89 | 7,26 | 16,00 |
| 14000 | 602,4 | 8,16 | 7,81 | 15,40 |

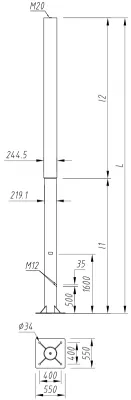
Použití:
Stožáry jsou určeny pro uchycení železniční trakce.
Popis:
Dvoudílný nosný trubkový stožár o průměru 168,3/219,1 mm s tloušťkou stěny 8/10 mm v rozsahu výšek 6 až 14 metrů s odstupňováním po 0,5m.
Na stožár mohou být použity všechny vhodné druhy povrchových úprav.
| Výška (m) L | Hmotnost (kg) | Nátěrová plocha (m2) | Zatížení větrem (kNm) | Únosnost (kNm) |
| 6000 | 255,2 | 3,53 | 1,04 | 65,8 |
| 6500 | 280,9 | 3,88 | 1,28 | 65,7 |
| 7000 | 306,7 | 4,22 | 1,54 | 65,4 |
| 7500 | 332,4 | 4,57 | 1,83 | 65,2 |
| 8000 | 358,2 | 4,91 | 2,15 | 62,4 |
| 8500 | 383,9 | 5,25 | 2,49 | 59,6 |
| 9000 | 399,7 | 5,52 | 2,8 | 54,2 |
| 9500 | 425,5 | 5,87 | 3,18 | 52,1 |
| 10000 | 441,3 | 6,13 | 3,53 | 47,8 |
| 10500 | 467,0 | 6,47 | 3,96 | 46,3 |
| 11000 | 482,8 | 6,74 | 4,35 | 42,8 |
| 11500 | 508,6 | 7,08 | 4,83 | 41,6 |
| 12000 | 524,4 | 7,34 | 5,26 | 38,8 |
| 12500 | 550,1 | 7,69 | 5,78 | 37,8 |
| 13000 | 565,9 | 7,95 | 6,25 | 35,4 |
| 13500 | 591,7 | 8,3 | 6,82 | 34,6 |
| 14000 | 607,5 | 8,56 | 7,33 | 32,6 |

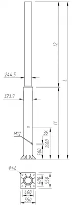
Použití:
Stožáry jsou určeny pro uchycení železniční trakce.
Popis:
Dvoudílný nosný trubkový stožár o průměru 168,3/219,1 mm s tloušťkou stěny 8/10 mm v rozsahu výšek 6 až 14 metrů s odstupňováním po 0,5m s patkou. Tento typ stožáru je kompatibilní se svorníkovým košem typu KS36.
Na stožár mohou být použity všechny vhodné druhy povrchových úprav.
| Výška (m) L | Hmotnost (kg) | Nátěrová plocha (m2) | Zatížení větrem (kNm) | Únosnost (kNm) |
| 6000 | 316,2 | 4,51 | 1,54 | 65,6 |
| 6500 | 342,0 | 4,85 | 1,83 | 65,2 |
| 7000 | 367,7 | 5,2 | 2,15 | 62,4 |
| 7500 | 393,5 | 5,54 | 2,49 | 59,6 |
| 8000 | 419,2 | 5,88 | 2,85 | 56,9 |
| 8500 | 445,0 | 6,2 | 3,25 | 54,3 |
| 9000 | 460,8 | 6,49 | 3,59 | 50,1 |
| 9500 | 486,5 | 6,84 | 4,03 | 48,1 |
| 10000 | 502,3 | 7,1 | 5,42 | 44,7 |
| 10500 | 528,1 | 7,44 | 4,91 | 43,2 |
| 11000 | 543,9 | 7,71 | 5,33 | 40,3 |
| 11500 | 569,6 | 8,05 | 5,86 | 39,1 |
| 12000 | 585,4 | 8,31 | 6,33 | 36,8 |
| 12500 | 611,2 | 8,66 | 6,91 | 35,8 |
| 13000 | 627,0 | 8,92 | 7,42 | 33,7 |
| 13500 | 652,7 | 9,27 | 8,04 | 32,9 |
| 14000 | 668,5 | 9,53 | 8,59 | 31,2 |

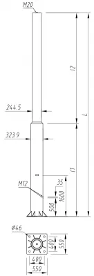
Použití:
Stožáry jsou určeny pro uchycení železniční trakce.
Popis:
Dvoudílný nosný trubkový stožár o průměru 168,3/219,1 mm s tloušťkou stěny 8/10 mm v rozsahu výšek 6 až 14 metrů s odstupňováním po 0,5m s patkou a úchytem pro podpěrný izolátor. Tento typ stožáru je kompatibilní se svorníkovým košem typu KS36.
Na stožár mohou být použity všechny vhodné druhy povrchových úprav.
| Výška (m) L | Hmotnost (kg) | Nátěrová plocha (m2) | Zatížení větrem (kNm) | Únosnost (kNm) |
| 6000 | 317,8 | 4,51 | 1,54 | 65,60 |
| 6500 | 343,6 | 4,85 | 1,83 | 65,20 |
| 7000 | 369,3 | 5,20 | 2,15 | 62,40 |
| 7500 | 395,1 | 5,54 | 2,49 | 59,60 |
| 8000 | 420,8 | 5,88 | 2,85 | 56,90 |
| 8500 | 446,6 | 6,20 | 3,25 | 54,30 |
| 9000 | 462,4 | 6,49 | 3,59 | 50,10 |
| 9500 | 488,1 | 6,84 | 4,03 | 48,10 |
| 10000 | 503,9 | 7,10 | 5,42 | 44,70 |
| 10500 | 529,7 | 7,44 | 4,91 | 43,20 |
| 11000 | 545,5 | 7,71 | 5,33 | 40,30 |
| 11500 | 571,2 | 8,05 | 5,86 | 39,10 |
| 12000 | 587,0 | 8,31 | 6,33 | 36,80 |
| 12500 | 612,8 | 8,66 | 6,91 | 35,80 |
| 13000 | 628,6 | 8,92 | 7,42 | 33,70 |
| 13500 | 654,3 | 9,27 | 8,04 | 32,90 |
| 14000 | 670,1 | 9,53 | 8,59 | 31,20 |

Použití:
Stožáry jsou určeny pro uchycení železniční trakce.
Popis:
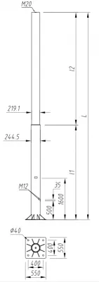
Dvoudílný nosný trubkový stožár o průměru 219,1/244,5 mm s tloušťkou stěny 8/10 mm v rozsahu výšek 6 až 14 metrů s odstupňováním po 0,5m.
| Výška (m) L | Hmotnost (kg) | Nátěrová plocha (m2) | Zatížení větrem (kNm) | Únosnost (kNm) |
| h = 1 000 mm | h = 1 000 mm | |||
| 6000 | 305,5 | 4,25 | 1,32 | 83,40 |
| 6500 | 334,5 | 4,64 | 1,61 | 83,30 |
| 7000 | 363,5 | 5,02 | 1,93 | 83,20 |
| 7500 | 392,5 | 5,41 | 2,27 | 83,10 |
| 8000 | 421,5 | 5,79 | 2,64 | 83,00 |
| 8500 | 450,5 | 6,18 | 3,05 | 82,80 |
| 9000 | 471,3 | 6,52 | 3,45 | 82,60 |
| 9500 | 500,3 | 6,91 | 3,91 | 78,80 |
| 10000 | 521,1 | 7,25 | 4,36 | 73,50 |
| 10500 | 550,1 | 7,64 | 4,88 | 70,30 |
| 11000 | 570,9 | 7,94 | 5,38 | 66,00 |
| 11500 | 599,9 | 8,36 | 5,95 | 63,40 |
| 12000 | 620,7 | 8,71 | 6,51 | 59,90 |
| 12500 | 649,7 | 9,19 | 7,13 | 57,70 |
| 13000 | 670,5 | 9,44 | 7,74 | 54,80 |
| 13500 | 699,5 | 9,82 | 8,42 | 53,00 |
| 14000 | 720,3 | 10,17 | 9,08 | 50,50 |

Použití:
Stožáry jsou určeny pro uchycení železniční trakce.
Popis:
Dvoudílný nosný trubkový stožár o průměru 219,1/244,5 mm s tloušťkou stěny 8/10 mm v rozsahu výšek 6 až 14 metrů s odstupňováním po 0,5m s patkou. Tento typ stožáru je kompatibilní se svorníkovým košem typu KS36.
Na stožár mohou být použity všechny vhodné druhy povrchových úprav.
| Výška (m) L | Hmotnost (kg) | Nátěrová plocha (m2) | Zatížení větrem (kNm) | Únosnost (kNm) |
| 6000 | 366,1 | 5,19 | 1,95 | 83,40 |
| 6500 | 395,1 | 5,58 | 2,30 | 83,10 |
| 7000 | 424,1 | 6,00 | 2,68 | 83,00 |
| 7500 | 453,1 | 6,35 | 3,09 | 82,70 |
| 8000 | 482,1 | 6,73 | 3,52 | 82,60 |
| 8500 | 511,1 | 7,12 | 3,99 | 80,20 |
| 9000 | 531,9 | 7,46 | 4,44 | 75,00 |
| 9500 | 560,9 | 7,85 | 4,96 | 71,50 |
| 10000 | 581,7 | 8,19 | 5,47 | 67,20 |
| 10500 | 610,7 | 8,58 | 6,04 | 64,40 |
| 11000 | 631,5 | 8,92 | 6,60 | 60,90 |
| 11500 | 660,5 | 9,30 | 7,23 | 58,60 |
| 12000 | 681,3 | 9,65 | 7,84 | 55,70 |
| 12500 | 710,3 | 10,03 | 8,53 | 53,80 |
| 13000 | 731,1 | 10,38 | 9,19 | 51,30 |
| 13500 | 760,1 | 10,76 | 9,93 | 49,70 |
| 14000 | 780,9 | 11,11 | 10,65 | 47,50 |

Použití:
Stožáry jsou určeny pro uchycení železniční trakce.
Popis:
Dvoudílný nosný trubkový stožár o průměru 219,1/244,5 mm s tloušťkou stěny 8/10 mm v rozsahu výšek 6 až 14 metrů s odstupňováním po 0,5m s patkou a úchytem pro podpěrný izolátor. Tento typ stožáru je kompatibilní se svorníkovým košem typu KS36.
Na stožár mohou být použity všechny vhodné druhy povrchových úprav.
| Výška (m) L | Hmotnost (kg) | Nátěrová plocha (m2) | Zatížení větrem (kNm) | Únosnost (kNm) |
| 6000 | 367,7 | 5,19 | 1,95 | 83,40 |
| 6500 | 396,7 | 5,58 | 2,30 | 83,10 |
| 7000 | 425,7 | 6,00 | 2,68 | 83,00 |
| 7500 | 454,7 | 6,35 | 3,09 | 82,70 |
| 8000 | 512,7 | 6,73 | 3,52 | 82,60 |
| 8500 | 533,5 | 7,12 | 3,99 | 80,20 |
| 9000 | 562,5 | 7,46 | 4,44 | 75,00 |
| 9500 | 562,5 | 7,85 | 4,96 | 71,50 |
| 10000 | 583,3 | 8,19 | 5,47 | 67,20 |
| 10500 | 612,3 | 8,58 | 6,04 | 64,40 |
| 11000 | 633,1 | 8,92 | 6,60 | 60,90 |
| 11500 | 662,1 | 9,30 | 7,23 | 58,60 |
| 12000 | 682,9 | 9,65 | 7,84 | 55,70 |
| 12500 | 711,9 | 10,03 | 8,53 | 53,80 |
| 13000 | 732,7 | 10,38 | 9,19 | 51,30 |
| 13500 | 761,7 | 10,76 | 9,93 | 49,70 |
| 14000 | 782,5 | 11,11 | 10,65 | 47,50 |

Použití:
Stožáry jsou určeny pro uchycení železniční trakce.
Popis:
Dvoudílný nosný trubkový stožár o průměru 244,5/323,9 mm s tloušťkou stěny 12,5/16 mm v rozsahu výšek 6 až 14 metrů s odstupňováním po 0,5m.
Na stožár mohou být použity všechny vhodné druhy povrchových úprav.
| Výška (m) L | Hmotnost (kg) | Nátěrová plocha (m2) | Zatížení větrem (kNm) | Únosnost (kNm) |
| h = 1 000 mm | h = 1 000 mm | |||
| 6500 | 680,7 | 6,18 | 1,88 | 220,00 |
| 7000 | 716,5 | 6,56 | 2,26 | 220,00 |
| 7500 | 801,7 | 7,20 | 2,69 | 220,00 |
| 8000 | 837,5 | 7,58 | 3,47 | 215,00 |
| 8500 | 898,0 | 8,09 | 4,00 | 210,00 |
| 9000 | 933,7 | 8,47 | 4,46 | 205,00 |
| 9500 | 994,7 | 8,98 | 5,06 | 200,00 |
| 10000 | 1030,0 | 9,37 | 5,59 | 200,00 |
| 10500 | 1090,5 | 9,88 | 6,25 | 200,00 |
| 11000 | 1126,2 | 10,26 | 6,83 | 186,31 |
| 11500 | 1186,7 | 10,77 | 7,56 | 181,23 |
| 12000 | 1222,5 | 11,15 | 8,21 | 168,58 |
| 12500 | 1283,0 | 11,66 | 9,01 | 164,49 |
| 13000 | 1318,8 | 12,05 | 9,70 | 153,92 |
| 13500 | 1379,2 | 12,56 | 10,57 | 150,56 |
| 14000 | 1415,0 | 12,94 | 10,74 | 141,60 |

Použití:
Stožáry jsou určeny pro uchycení železniční trakce.
Popis:
Dvoudílný nosný trubkový stožár o průměru 244,5/323,9 mm s tloušťkou stěny 12,5/16 mm v rozsahu výšek 6 až 14 metrů s odstupňováním po 0,5m s patkou. Tento typ stožáru je kompatibilní se svorníkovým košem typu KS42.
Na stožár mohou být použity všechny vhodné druhy povrchových úprav.
| Výška (m) L | Hmotnost (kg) | Nátěrová plocha (m2) | Zatížení větrem (kNm) | Únosnost (kNm) |
| 6500 | 743,8 | 7,14 | 2,69 | 200,00 |
| 7000 | 779,5 | 7,53 | 3,15 | 200,00 |
| 7500 | 864,8 | 8,16 | 3,65 | 200,00 |
| 8000 | 900,5 | 8,54 | 4,57 | 200,00 |
| 8500 | 961,0 | 9,05 | 5,18 | 200,00 |
| 9000 | 996,8 | 9,44 | 5,70 | 200,00 |
| 9500 | 1057,8 | 9,94 | 6,37 | 200,00 |
| 10000 | 1093,0 | 10,33 | 6,95 | 195,20 |
| 10500 | 1153,5 | 10,84 | 7,70 | 188,90 |
| 11000 | 1189,3 | 11,22 | 8,33 | 176,10 |
| 11500 | 1249,8 | 11,73 | 9,14 | 171,00 |
| 12000 | 1285,5 | 12,11 | 9,85 | 160,30 |
| 12500 | 1346,0 | 12,62 | 10,73 | 156,20 |
| 13000 | 1381,8 | 13,01 | 11,47 | 147,10 |
| 13500 | 1442,3 | 13,52 | 12,42 | 143,70 |
| 14000 | 1478,0 | 13,90 | 12,59 | 135,90 |

Použití:
Stožáry jsou určeny pro uchycení železniční trakce.
Popis:
Dvoudílný nosný trubkový stožár o průměru 244,5/323,9 mm s tloušťkou stěny 12,5/16 mm v rozsahu výšek 6 až 14 metrů s odstupňováním po 0,5m s patkou a úchytem pro podpěrný izolátor. Tento typ stožáru je kompatibilní se svorníkovým košem typu KS42.
Na stožár mohou být použity všechny vhodné druhy povrchových úprav.
| Výška (m) L | Hmotnost (kg) | Nátěrová plocha (m2) | Zatížení větrem (kNm) | Únosnost (kNm) |
| 6500 | 745,4 | 7,14 | 2,69 | 200,00 |
| 7000 | 781,2 | 7,53 | 3,15 | 200,00 |
| 7500 | 866,4 | 8,16 | 3,65 | 200,00 |
| 8000 | 902,2 | 8,54 | 4,57 | 200,00 |
| 8500 | 962,7 | 9,05 | 5,18 | 200,00 |
| 9000 | 998,4 | 9,44 | 5,70 | 200,00 |
| 9500 | 1059,4 | 9,94 | 6,37 | 200,00 |
| 10000 | 1094,7 | 10,33 | 6,95 | 195,20 |
| 10500 | 1155,2 | 10,84 | 7,70 | 188,90 |
| 11000 | 1190,9 | 11,22 | 8,33 | 176,10 |
| 11500 | 1251,4 | 11,73 | 9,14 | 171,00 |
| 12000 | 1287,2 | 12,11 | 9,85 | 160,30 |
| 12500 | 1347,7 | 12,62 | 10,73 | 156,20 |
| 13000 | 1383,4 | 13,01 | 11,47 | 147,10 |
| 13500 | 1443,9 | 13,52 | 12,42 | 143,70 |
| 14000 | 1479,7 | 13,90 | 12,59 | 135,90 |

Použití:
Stožáry jsou určeny pro uchycení železniční trakce.
Popis:
Dvoudílný nosný trubkový stožár o průměru 168,3/219,1 mm s tloušťkou stěny 8/10 mm v rozsahu výšek 6 až 14 metrů s odstupňováním po 0,5m.
Na stožár mohou být použity všechny vhodné druhy povrchových úprav.
| Výška (m) L | Hmotnost (kg) | Nátěrová plocha (m2) | Zatížení větrem (kNm) | Únosnost (kNm) |
| h = 650 mm | h = 650 mm | |||
| 6000 | 255,2 | 3,53 | 1,42 | 30,90 |
| 6500 | 280,9 | 3,88 | 1,71 | 30,80 |
| 7000 | 306,7 | 4,22 | 2,03 | 30,80 |
| 7500 | 332,4 | 4,57 | 2,37 | 30,70 |
| 8000 | 358,2 | 4,91 | 2,74 | 30,50 |
| 8500 | 383,9 | 5,25 | 3,13 | 29,00 |
| 9000 | 399,7 | 5,52 | 3,52 | 26,20 |
| 9500 | 425,5 | 5,87 | 3,97 | 25,20 |
| 10000 | 441,3 | 6,13 | 4,41 | 23,00 |
| 10500 | 467,0 | 6,47 | 4,91 | 22,30 |
| 11000 | 482,8 | 6,74 | 5,39 | 20,50 |
| 11500 | 508,6 | 7,08 | 5,94 | 19,90 |
| 12000 | 524,4 | 7,34 | 6,46 | 18,50 |
| 12500 | 550,1 | 7,69 | 7,07 | 18,00 |
| 13000 | 565,9 | 7,95 | 7,64 | 16,90 |
| 13500 | 591,7 | 8,30 | 8,29 | 16,50 |
| 14000 | 607,5 | 8,56 | 8,91 | 15,50 |

Použití:
Stožáry jsou určeny pro uchycení železniční trakce.
Popis:
Dvoudílný nosný trubkový stožár o průměru 168,3/219,1 mm s tloušťkou stěny 8/10 mm v rozsahu výšek 6 až 14 metrů s odstupňováním po 0,5m s patkou. Tento typ stožáru je kompatibilní se svorníkovým košem typu KS30.
Na stožár mohou být použity všechny vhodné druhy povrchových úprav.
| Výška (m) L | Hmotnost (kg) | Nátěrová plocha (m2) | Zatížení větrem (kNm) | Únosnost (kNm) |
| 6000 | 308,5 | 4,27 | 1,76 | 30,80 |
| 6500 | 334,3 | 4,61 | 2,09 | 30,60 |
| 7000 | 360,0 | 4,96 | 2,44 | 29,00 |
| 7500 | 385,8 | 5,30 | 2,81 | 27,70 |
| 8000 | 411,5 | 5,64 | 3,22 | 26,50 |
| 8500 | 437,3 | 5,96 | 3,65 | 25,50 |
| 9000 | 453,1 | 6,25 | 4,06 | 23,30 |
| 9500 | 478,8 | 6,60 | 4,54 | 22,40 |
| 10000 | 494,6 | 6,86 | 5,00 | 20,80 |
| 10500 | 520,4 | 7,20 | 5,53 | 20,10 |
| 11000 | 536,2 | 7,47 | 6,04 | 18,70 |
| 11500 | 561,9 | 7,81 | 6,63 | 18,20 |
| 12000 | 577,7 | 8,07 | 7,18 | 17,10 |
| 12500 | 603,5 | 8,42 | 7,82 | 16,60 |
| 13000 | 619,3 | 8,68 | 8,41 | 15,70 |
| 13500 | 645,0 | 9,03 | 9,10 | 15,30 |
| 14000 | 660,8 | 9,29 | 9,75 | 14,50 |

Použití:
Stožáry jsou určeny pro uchycení železniční trakce.
Popis:
Dvoudílný nosný trubkový stožár o průměru 168,3/219,1 mm s tloušťkou stěny 8/10 mm v rozsahu výšek 6 až 14 metrů s odstupňováním po 0,5m s patkou a úchytem pro podpěrný izolátor. Tento typ stožáru je kompatibilní se svorníkovým košem typu KS30.
Na stožár mohou být použity všechny vhodné druhy povrchových úprav.
| Výška (m) L | Hmotnost (kg) | Nátěrová plocha (m2) | Zatížení větrem (kNm) | Únosnost (kNm) |
| 6000 | 310,2 | 4,03 | 1,76 | 30,80 |
| 6500 | 336,0 | 4,37 | 2,09 | 30,60 |
| 7000 | 361,7 | 4,72 | 2,44 | 29,00 |
| 7500 | 387,5 | 5,06 | 2,81 | 27,70 |
| 8000 | 413,2 | 5,40 | 3,22 | 26,50 |
| 8500 | 439,0 | 5,72 | 3,65 | 25,50 |
| 9000 | 454,8 | 6,01 | 4,06 | 23,30 |
| 9500 | 480,5 | 6,36 | 4,54 | 22,40 |
| 10000 | 496,3 | 6,62 | 5,00 | 20,80 |
| 10500 | 522,1 | 6,96 | 5,53 | 20,10 |
| 11000 | 537,9 | 7,23 | 6,04 | 18,70 |
| 11500 | 563,6 | 7,57 | 6,63 | 18,20 |
| 12000 | 579,4 | 7,83 | 7,18 | 17,10 |
| 12500 | 605,2 | 8,18 | 7,82 | 16,60 |
| 13000 | 621,0 | 8,44 | 8,41 | 15,70 |
| 13500 | 646,7 | 8,79 | 9,10 | 15,30 |
| 14000 | 662,5 | 9,05 | 9,75 | 14,50 |

Použití:
Stožáry jsou určeny pro uchycení železniční trakce.
Popis:
Dvoudílný nosný trubkový stožár o průměru 219,1/244,5 mm s tloušťkou stěny 8/10 mm v rozsahu výšek 6 až 14 metrů s odstupňováním po 0,5m.
Na stožár mohou být použity všechny vhodné druhy povrchových úprav.
| Výška (m) | Hmotnost (kg) | Nátěrová plocha (m2) | Zatížení větrem (kNm) | Únosnost (kNm) |
| h = 650 mm | h = 650 mm | |||
| 6000 | 305,5 | 4,25 | 1,63 | 54,10 |
| 6500 | 334,5 | 4,64 | 1,96 | 54,00 |
| 7000 | 363,5 | 5,02 | 2,31 | 53,90 |
| 7500 | 392,5 | 5,41 | 2,69 | 53,80 |
| 8000 | 421,5 | 5,79 | 3,11 | 53,70 |
| 8500 | 450,5 | 6,18 | 3,55 | 53,60 |
| 9000 | 471,3 | 6,52 | 4,00 | 53,50 |
| 9500 | 500,3 | 6,91 | 4,50 | 53,20 |
| 10000 | 521,1 | 7,25 | 5,01 | 49,20 |
| 10500 | 550,1 | 7,64 | 5,57 | 47,30 |
| 11000 | 570,9 | 7,94 | 6,14 | 44,10 |
| 11500 | 599,9 | 8,36 | 6,75 | 42,50 |
| 12000 | 620,7 | 8,71 | 7,37 | 40,00 |
| 12500 | 649,7 | 9,19 | 8,05 | 38,70 |
| 13000 | 670,5 | 9,44 | 8,72 | 36,60 |
| 13500 | 699,5 | 9,82 | 9,45 | 35,40 |
| 14000 | 720,3 | 10,17 | 10,18 | 33,70 |

Použití:
Stožáry jsou určeny pro uchycení železniční trakce.
Popis:
Dvoudílný nosný trubkový stožár o průměru 219,1/244,5 mm s tloušťkou stěny 8/10 mm v rozsahu výšek 6 až 14 metrů s odstupňováním po 0,5m s patkou. Tento typ stožáru je kompatibilní se svorníkovým košem typu KS30.
Na stožár mohou být použity všechny vhodné druhy povrchových úprav.
| Výška (m) L | Hmotnost (kg) | Nátěrová plocha (m2) | Zatížení větrem (kNm) | Únosnost (kNm) |
| 6000 | 367,6 | 5,18 | 2,04 | 54,00 |
| 6500 | 396,6 | 5,57 | 2,40 | 53,90 |
| 7000 | 425,6 | 5,95 | 2,79 | 53,80 |
| 7500 | 454,6 | 6,34 | 3,21 | 53,70 |
| 8000 | 512,6 | 6,73 | 3,66 | 53,60 |
| 8500 | 533,4 | 7,11 | 4,14 | 53,50 |
| 9000 | 562,4 | 7,45 | 4,63 | 50,30 |
| 9500 | 562,4 | 7,84 | 5,17 | 48,20 |
| 10000 | 583,2 | 8,18 | 5,71 | 45,00 |
| 10500 | 612,2 | 8,57 | 6,31 | 43,30 |
| 11000 | 633,0 | 8,91 | 6,91 | 40,70 |
| 11500 | 662,0 | 9,30 | 7,56 | 39,30 |
| 12000 | 682,8 | 9,64 | 8,22 | 37,20 |
| 12500 | 711,8 | 10,03 | 8,93 | 36,00 |
| 13000 | 732,6 | 10,37 | 9,64 | 34,30 |
| 13500 | 761,6 | 10,75 | 10,41 | 33,20 |
| 14000 | 782,4 | 11,10 | 11,17 | 31,70 |

Použití:
Stožáry jsou určeny pro uchycení železniční trakce.
Popis:
Dvoudílný nosný trubkový stožár o průměru 219,1/244,5 mm s tloušťkou stěny 8/10 mm v rozsahu výšek 6 až 14 metrů s odstupňováním po 0,5m s patkou a úchytem pro podpěrný izolátor. Tento typ stožáru je kompatibilní se svorníkovým košem typu KS30.
Na stožár mohou být použity všechny vhodné druhy povrchových úprav.
| Výška (m) L | Hmotnost (kg) | Nátěrová plocha (m2) | Zatížení větrem (kNm) | Únosnost (kNm) |
| 6000 | 369,2 | 5,18 | 2,04 | 54,00 |
| 6500 | 398,2 | 5,57 | 2,40 | 53,90 |
| 7000 | 427,2 | 5,95 | 2,79 | 53,80 |
| 7500 | 456,2 | 6,34 | 3,21 | 53,70 |
| 8000 | 485,2 | 6,73 | 3,66 | 53,60 |
| 8500 | 514,2 | 7,11 | 4,14 | 53,50 |
| 9000 | 535,0 | 7,45 | 4,63 | 50,30 |
| 9500 | 564,0 | 7,84 | 5,17 | 48,20 |
| 10000 | 584,8 | 8,18 | 5,71 | 45,00 |
| 10500 | 613,8 | 8,57 | 6,31 | 43,30 |
| 11000 | 634,6 | 8,91 | 6,91 | 40,70 |
| 11500 | 663,6 | 9,30 | 7,56 | 39,30 |
| 12000 | 684,4 | 9,64 | 8,22 | 37,20 |
| 12500 | 713,4 | 10,03 | 8,93 | 36,00 |
| 13000 | 734,2 | 10,37 | 9,64 | 34,30 |
| 13500 | 763,2 | 10,75 | 10,41 | 33,20 |
| 14000 | 784,0 | 11,10 | 11,17 | 31,70 |

Použití:
Koš je určený pro zalití do zakladu k uchycení železniční trakčních stožárů s patkou.
Popis:
Tento typ koše je kompatibilní s trakčními stožáry typu TS168/TSI168, TBS219/TBSI219, TBS245/TBSI245.

Použití:
Koš je určený pro zalití do zakladu k uchycení železniční trakčních stožárů s patkou.
Popis:
Tento typ koše je kompatibilní s trakčními stožáry typu TS219/TSI219, TS245/TSI245.

Použití:
Koš je určený pro zalití do zakladu k uchycení železniční trakčních stožárů s patkou.
Popis:
Tento typ koše je kompatibilní s trakčními stožáry typu TS324/TSI324.

Použití:
Koš je určený pro zalití do zakladu k uchycení železniční trakčních stožárů s patkou.
Popis:
Tento typ koše je kompatibilní s trakčními stožáry typu 2TBS219/2TBSI219, 2TBS245/2TBSI245.

Použití:
Koš je určený pro zalití do zakladu k uchycení železniční trakčních stožárů s patkou.
Popis:
Tento typ koše je kompatibilní s trakčními stožáry typu 2TS245/2TSI245.

Svorník kotevní o průměrech tyče 36mm, 42mm, 45mm a délkách 1500mm, 2200mm a 2500mm.
Součástí dodávky je pár kloubových podložek.
Použití:
Svorník je určený pro zalití do základu k uchycení železnicích trakčních stožárů s patkou.
Popis:
Tento typ svorníku je kompaktibilní s trakčními stožáry typu BP.